Guideline
E Portfolio E Code E Guideline
Non-enforceable, intended as informative, compelling description of smart growth and traditional town making in advocating planning goals to officials, specialists, and participants in the building industry.

As adjunct to a project’s regulations, guidelines illustrate and instruct marketing, development, programming, local and property owner governance, design, and construction.

  • PATTERN BOOK: vernaculars of local tradition in southwest Utah, prepared for architecture standards and stylistic palette of a high desert community.
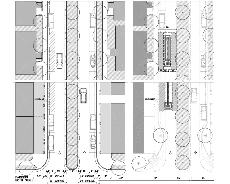
  • EMERGENCY VEHICLE: dimensions and geometry of fire apparatus methods, proposed for narrow streets – vehicle turning, set up, traffic clearance, ladder heights, block length.
  • INFILL / OVERLAY: to selected zones in existing towns where disinvestment and deterioration compel renewal incentives to developers.
  • TRANSECT ZONE: demonstration of constituent parts of each zone along the neighborhood span from center to edge.
  • BUILDING TYPE: synopsis of traditional building form for walkable places, based upon four prototypes, nine standard types (and three specific types for each).
Guideline
Non-enforceable, intended as informative, compelling description of smart growth and traditional town making in advocating planning goals to officials, specialists, and participants in the building industry.

As adjunct to a project’s regulations, guidelines illustrate and instruct marketing, development, programming, local and property owner governance, design, and construction.

  • PATTERN BOOK: vernaculars of local tradition in southwest Utah, prepared for architecture standards and stylistic palette of a high desert community.
  • EMERGENCY VEHICLE: dimensions and geometry of fire apparatus methods, proposed for narrow streets – vehicle turning, set up, traffic clearance, ladder heights, block length.
  • INFILL / OVERLAY: to selected zones in existing towns where disinvestment and deterioration compel renewal incentives to developers.
  • TRANSECT ZONE: demonstration of constituent parts of each zone along the neighborhood span from center to edge.
  • BUILDING TYPE: synopsis of traditional building form for walkable places, based upon four prototypes, nine standard types (and three specific types for each).